兵庫県播磨町にて、2020年6月より『外国人労働者向け集合住宅(社宅)』の建設工事に着手 異文化を学び、暮らし方を採り入れた大規模木造住宅での提案
[20/05/26]
提供元:@Press
提供元:@Press
兵庫県を中心に注文住宅の設計・施工を手がける株式会社Labo(所在地:兵庫県明石市、代表取締役社長:渡辺 喜夫)は、鋼板の溶断及び加工、鋼材全般に亘る販売を行う久商株式会社 (本社:兵庫県加古郡播磨町、代表取締役社長:藤本 孝)からの依頼により、『外国人労働者向け集合住宅(社宅)』を、大規模な木造住宅にて建設することとなりました。
近年社会問題となっている外国人労働者の住環境に着目し、異文化ならではの暮らし方に配慮した大規模木造住宅となります。
計画に先立ち、神戸市内にてアジア家庭料理を提供するレストランを営みながら、外国人労働者の就労支援を行っている「神戸アジアン食堂バルSALA(サラ)」の黒田 尚子氏と、ベトナム出身で神戸市役所 市長室 国際部国際課にて活躍されているDANG TRUNG HUNG(ダン チュン フン)氏の協力を得て、ベトナム人の国民性や生活様式を学び、抽出した外国人労働者が抱える問題点を設計にて解決。日本でストレスなく安心して生活出来る住環境を実現する集合住宅(社宅)となりました。なお、工事は2020年6月に着手し、2020年11月に完成予定となります。
画像1: https://www.atpress.ne.jp/releases/212901/LL_img_212901_1.jpg
外観イメージパース(南面1)
画像2: https://www.atpress.ne.jp/releases/212901/LL_img_212901_2.jpg
外観イメージパース(南面2)
【プロジェクトの背景】
少子高齢化社会を迎え、労働者不足がますます深刻化してくると予測される現代、外国人労働者の受け入れを拡大していくことが急務であり、国もその施策に取り組んでいます。しかしながら現状をみると日本の外国人労働者の受け入れは、先進諸国に比べるとまだまだ少ない状態となっています。
これらの原因のひとつとして、保証人を立てにくい外国人は単独でアパートやマンションを借りることが難しいことがあげられます。また、社会とのつながりを持ちにくかったり、文化も生活スタイルも違う国での労働は、ストレスに感じることも多く、日本で働く外国人労働者の住環境は決して充実したものとは言えない状態です。
そんな社会背景の中、外国人労働者を多く受け入れ、鋼板の溶断及び加工、鋼材全般に亘る販売を行う久商株式会社様から、主にベトナム人が住む『外国人労働者向け集合住宅(社宅)』建設についての依頼を受けました。建設にあたる提案・打合せを行い、株式会社Laboにて大規模な木造住宅として建設いたします。近年社会問題となっている外国人労働者の住環境に着目し、異文化ならではの暮らし方に配慮した大規模木造住宅となります。
計画に先立ち、中国やタイ、フィリピンなどから来て神戸市内に住む外国人女性が作る母国の料理を提供するレストランを営みながら、彼女たちの就労支援も行っている「神戸アジアン食堂バルSALA(サラ)」の黒田 尚子氏や、ベトナム出身で神戸市役所 市長室 国際部国際課にて活躍されているDANG TRUNG HUNG(ダン チュン フン)氏に協力を依頼。ベトナム人の性格の特徴や国民性、生活様式やスタイルを学び、外国人労働者が抱える問題点の抽出を行いながら、「ベトナム人がストレスなく、日本で安心して労働に励むことが出来る住環境とはどういうものなのか?」を追求して進めてまいりました。
画像3: https://www.atpress.ne.jp/releases/212901/LL_img_212901_3.jpg
異文化の暮らし方を取り入れるための提案・打合せ
【集合住宅の特徴】
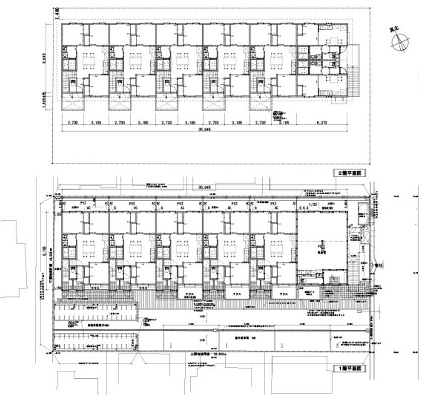
ルームシェアリング形態を採用し、1つの住戸で3人以上の労働者が生活することが可能な、「3LDK」を基本プランとしています。各プライベートルームとダイニングキッチン、洗面、浴室、トイレなどのパブリックスペースで構成。ルームシェアリングとすることで、広いパブリックスペースを持ちながら、公共料金などを折半することが出来、労働者の経済的負担も少なくなります。
またベトナムの国民性にあわせて、住戸内での炊事は各自で行えるよう、炊飯器が3台設置出来る食器棚スペースを想定したり、集合住宅共用部に労働者全員で使用するコインランドリーはあえて設置せず、各住戸に洗濯機置き場を1台設置しました。役割分担を行い、協力し合って生活するというベトナムのライフスタイルに合わせています。
また家族や友人とのつながりを大切にしたいというベトナムの国民性にあわせて、広めの集会所も設置。週末や夕食時には大勢でワイワイとホームパーティを楽しんだり、労働者たちが社宅内ミーティングを行うことが可能です。
ハーブなどの香味野菜や生野菜を毎食と言っていいほど食べるベトナム国民。食の安心安全への意識が高まっていることから、昨今家庭のベランダやオフィスの屋上などで行う家庭菜園が注目されています。その背景を踏まえて、共同で使える家庭菜園スペースも確保。労働者同士でハーブやプチトマトなどを育てることで、安心して食べることが出来る上、コミュニケーションを図るきっかけにもなります。
画像4: https://www.atpress.ne.jp/releases/212901/LL_img_212901_5.jpg
平面図(1.2階)
【外国人労働者向け集合住宅が目指すもの】
異文化を学び、ベトナムでの暮らし方に準じたプランニングや設備、生活様式を採り入れることで、外国人労働者の住環境の向上を図ることを目的としています。
ルームシェアリングという言葉が定着した現在、集合住宅は広さやスペックだけでなく、コミュニケーションの質や誰とどんな時間を過ごすことが出来るのかが、普遍的な価値として求められるようになってきました。外国人の生活様式にあわせた集合住宅の供給促進を行うことで、労働者がストレスなく安心して労働に励むことが出来る。そして、雇用主が積極的に外国人労働者を迎え入れることが出来る。
このプロジェクトを通じて、外国人労働者の住環境の向上や外国人労働者の雇用促進のきっかけになればと考えています。
【本プロジェクトで、期待出来る効果】
■外国人労働者の住環境の向上 ■外国人労働者の雇用促進
■外国人労働者のライフサポート ■雇用企業の業務効率向上
画像5: https://www.atpress.ne.jp/releases/212901/LL_img_212901_8.jpg
2020年5月吉日 地鎮祭
画像6: https://www.atpress.ne.jp/releases/212901/LL_img_212901_11.jpg
地鎮祭終了後の記念撮影
【物件概要】
所在地 :兵庫県加古郡播磨町北本荘2丁目820番2
敷地面積 :782.29m2(236.64坪)
1階施工床面積:337.67m2
2階施工床面積:320.88m2
施工延床面積 :658.55m2(199.21坪)
■株式会社Labo 外国人労働者向け集合住宅(社宅)
https://www.jk-labo.com/information/detail.php?seq=448
【久商株式会社 概要】
所在地: 兵庫県加古郡播磨町新島6番地16
設立 : 1954年10月
代表者: 代表取締役社長 藤本 孝
TEL : 079-441-1201
URL : http://www.kyusyo.co.jp/index.html
【神戸アジアン食堂バルSALA(サラ) 概要】
所在地: 兵庫県神戸市中央区元町通2-3-16 食味館1階
代表 : 黒田 尚子
URL : http://kobe-sala.asia/
【株式会社Labo 概要】
株式会社Laboは兵庫県播磨地域を中心に、建築・不動産事業を手がける株式会社KHCグループにおける注文住宅の設計・施工会社として、これまで5,000棟を超える木造住宅の供給実績を持つ、木造建築のプロ集団です。
「ひと」を中心とした住まいづくりをコンセプトに掲げ、店舗や事務所、集合住宅、施設などの中大規模木造建築物にも幅広く対応。使う人に優しく木造の魅力にこだわった空間デザインを提供しています。
所在地: 兵庫県明石市松の内1丁目4-13
設立 : 2002年1月
代表者: 代表取締役社長 渡辺 喜夫
TEL : 078-929-1551
FAX : 078-929-1857
URL : http://www.jk-labo.com/
近年社会問題となっている外国人労働者の住環境に着目し、異文化ならではの暮らし方に配慮した大規模木造住宅となります。
計画に先立ち、神戸市内にてアジア家庭料理を提供するレストランを営みながら、外国人労働者の就労支援を行っている「神戸アジアン食堂バルSALA(サラ)」の黒田 尚子氏と、ベトナム出身で神戸市役所 市長室 国際部国際課にて活躍されているDANG TRUNG HUNG(ダン チュン フン)氏の協力を得て、ベトナム人の国民性や生活様式を学び、抽出した外国人労働者が抱える問題点を設計にて解決。日本でストレスなく安心して生活出来る住環境を実現する集合住宅(社宅)となりました。なお、工事は2020年6月に着手し、2020年11月に完成予定となります。
画像1: https://www.atpress.ne.jp/releases/212901/LL_img_212901_1.jpg
外観イメージパース(南面1)
画像2: https://www.atpress.ne.jp/releases/212901/LL_img_212901_2.jpg
外観イメージパース(南面2)
【プロジェクトの背景】
少子高齢化社会を迎え、労働者不足がますます深刻化してくると予測される現代、外国人労働者の受け入れを拡大していくことが急務であり、国もその施策に取り組んでいます。しかしながら現状をみると日本の外国人労働者の受け入れは、先進諸国に比べるとまだまだ少ない状態となっています。
これらの原因のひとつとして、保証人を立てにくい外国人は単独でアパートやマンションを借りることが難しいことがあげられます。また、社会とのつながりを持ちにくかったり、文化も生活スタイルも違う国での労働は、ストレスに感じることも多く、日本で働く外国人労働者の住環境は決して充実したものとは言えない状態です。
そんな社会背景の中、外国人労働者を多く受け入れ、鋼板の溶断及び加工、鋼材全般に亘る販売を行う久商株式会社様から、主にベトナム人が住む『外国人労働者向け集合住宅(社宅)』建設についての依頼を受けました。建設にあたる提案・打合せを行い、株式会社Laboにて大規模な木造住宅として建設いたします。近年社会問題となっている外国人労働者の住環境に着目し、異文化ならではの暮らし方に配慮した大規模木造住宅となります。
計画に先立ち、中国やタイ、フィリピンなどから来て神戸市内に住む外国人女性が作る母国の料理を提供するレストランを営みながら、彼女たちの就労支援も行っている「神戸アジアン食堂バルSALA(サラ)」の黒田 尚子氏や、ベトナム出身で神戸市役所 市長室 国際部国際課にて活躍されているDANG TRUNG HUNG(ダン チュン フン)氏に協力を依頼。ベトナム人の性格の特徴や国民性、生活様式やスタイルを学び、外国人労働者が抱える問題点の抽出を行いながら、「ベトナム人がストレスなく、日本で安心して労働に励むことが出来る住環境とはどういうものなのか?」を追求して進めてまいりました。
画像3: https://www.atpress.ne.jp/releases/212901/LL_img_212901_3.jpg
異文化の暮らし方を取り入れるための提案・打合せ
【集合住宅の特徴】
ルームシェアリング形態を採用し、1つの住戸で3人以上の労働者が生活することが可能な、「3LDK」を基本プランとしています。各プライベートルームとダイニングキッチン、洗面、浴室、トイレなどのパブリックスペースで構成。ルームシェアリングとすることで、広いパブリックスペースを持ちながら、公共料金などを折半することが出来、労働者の経済的負担も少なくなります。
またベトナムの国民性にあわせて、住戸内での炊事は各自で行えるよう、炊飯器が3台設置出来る食器棚スペースを想定したり、集合住宅共用部に労働者全員で使用するコインランドリーはあえて設置せず、各住戸に洗濯機置き場を1台設置しました。役割分担を行い、協力し合って生活するというベトナムのライフスタイルに合わせています。
また家族や友人とのつながりを大切にしたいというベトナムの国民性にあわせて、広めの集会所も設置。週末や夕食時には大勢でワイワイとホームパーティを楽しんだり、労働者たちが社宅内ミーティングを行うことが可能です。
ハーブなどの香味野菜や生野菜を毎食と言っていいほど食べるベトナム国民。食の安心安全への意識が高まっていることから、昨今家庭のベランダやオフィスの屋上などで行う家庭菜園が注目されています。その背景を踏まえて、共同で使える家庭菜園スペースも確保。労働者同士でハーブやプチトマトなどを育てることで、安心して食べることが出来る上、コミュニケーションを図るきっかけにもなります。
画像4: https://www.atpress.ne.jp/releases/212901/LL_img_212901_5.jpg
平面図(1.2階)
【外国人労働者向け集合住宅が目指すもの】
異文化を学び、ベトナムでの暮らし方に準じたプランニングや設備、生活様式を採り入れることで、外国人労働者の住環境の向上を図ることを目的としています。
ルームシェアリングという言葉が定着した現在、集合住宅は広さやスペックだけでなく、コミュニケーションの質や誰とどんな時間を過ごすことが出来るのかが、普遍的な価値として求められるようになってきました。外国人の生活様式にあわせた集合住宅の供給促進を行うことで、労働者がストレスなく安心して労働に励むことが出来る。そして、雇用主が積極的に外国人労働者を迎え入れることが出来る。
このプロジェクトを通じて、外国人労働者の住環境の向上や外国人労働者の雇用促進のきっかけになればと考えています。
【本プロジェクトで、期待出来る効果】
■外国人労働者の住環境の向上 ■外国人労働者の雇用促進
■外国人労働者のライフサポート ■雇用企業の業務効率向上
画像5: https://www.atpress.ne.jp/releases/212901/LL_img_212901_8.jpg
2020年5月吉日 地鎮祭
画像6: https://www.atpress.ne.jp/releases/212901/LL_img_212901_11.jpg
地鎮祭終了後の記念撮影
【物件概要】
所在地 :兵庫県加古郡播磨町北本荘2丁目820番2
敷地面積 :782.29m2(236.64坪)
1階施工床面積:337.67m2
2階施工床面積:320.88m2
施工延床面積 :658.55m2(199.21坪)
■株式会社Labo 外国人労働者向け集合住宅(社宅)
https://www.jk-labo.com/information/detail.php?seq=448
【久商株式会社 概要】
所在地: 兵庫県加古郡播磨町新島6番地16
設立 : 1954年10月
代表者: 代表取締役社長 藤本 孝
TEL : 079-441-1201
URL : http://www.kyusyo.co.jp/index.html
【神戸アジアン食堂バルSALA(サラ) 概要】
所在地: 兵庫県神戸市中央区元町通2-3-16 食味館1階
代表 : 黒田 尚子
URL : http://kobe-sala.asia/
【株式会社Labo 概要】
株式会社Laboは兵庫県播磨地域を中心に、建築・不動産事業を手がける株式会社KHCグループにおける注文住宅の設計・施工会社として、これまで5,000棟を超える木造住宅の供給実績を持つ、木造建築のプロ集団です。
「ひと」を中心とした住まいづくりをコンセプトに掲げ、店舗や事務所、集合住宅、施設などの中大規模木造建築物にも幅広く対応。使う人に優しく木造の魅力にこだわった空間デザインを提供しています。
所在地: 兵庫県明石市松の内1丁目4-13
設立 : 2002年1月
代表者: 代表取締役社長 渡辺 喜夫
TEL : 078-929-1551
FAX : 078-929-1857
URL : http://www.jk-labo.com/









SEO関連




